【導讀】開關電源模塊的電磁干擾一直是一個重要解決點,從原理上來講電磁干擾主要來自于兩個方面,分別是傳導干擾和輻射干擾。
傳導干擾
由于電路中寄生參數的存在,以及開關電源中調頻開關器件的開通與關斷,使得開關電源在市電交流輸入端產生較大共模干擾和差模干擾。
輻射干擾
由于導體中電流的變化會在其周圍空間中產生變化的磁場,而變化的磁場又產生變化的電場,這一變化電流的幅值和頻率決定其產生的電磁的大小以及其作用范圍。
為了減輕和抵制這些電磁干擾對電網以及電子設備產生的危害,工程技術人員在電路設計中加了X電容和Y電容。
X電容作用
X電容用來消除差模干擾。主要是起濾波作用,與共模電感匹配,并聯在輸入的兩端,濾除L、N線之間的差模信號。通常選用耐紋波電流比較大的聚脂薄膜類電容,體積較大其允許瞬間充放電的電流比較大,而其內阻相應較小。另外X電容也會采用塑封的方形高壓CBB電容,CBB電容不但有更好的電氣性能,而且與電源的輸入端并聯可以有效的減小高頻脈沖對電源的影響。

圖1
X電容應用
一般兩根引腳跨接在零線和火線之間,適用于高頻、直流、交流、耦合,跨接脈沖電路中,能夠能承受過壓沖擊,一般與電阻并聯使用,目的是起到泄放電荷作用。(如圖2所示)

圖2
Y電容作用
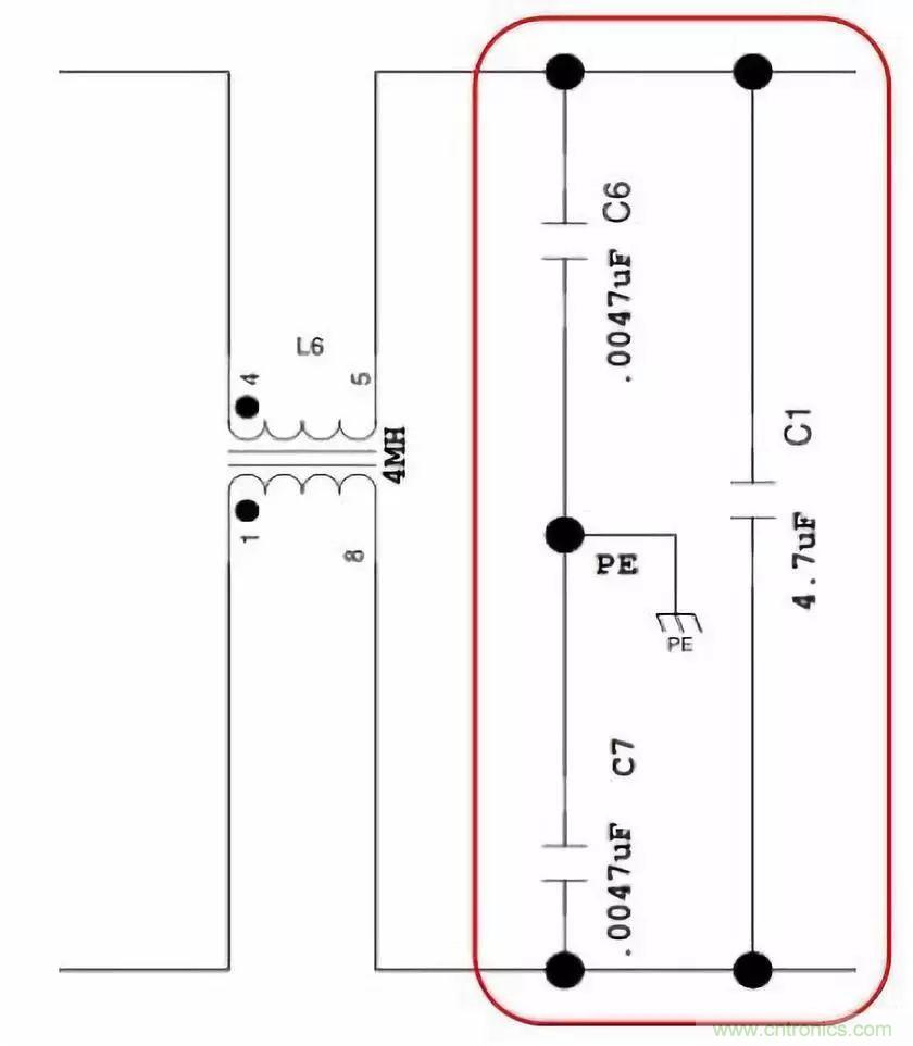
Y電容用來消除共模干擾。分別跨接在電力線兩線和地之間(L-E,N-E)的電容,一般是成對出現,濾除高次諧波,防止干擾,提高輸出電壓質量。基于漏電流的限制,Y電容值不能太大,Y電容通常采用高壓瓷片的。

圖3
Y電容應用
很多隔離式開關電源在初級和次級上加Y電容是為了給次級的共模電流提供一個回路到初級,減少共模電流對輸出的影響。Y電容串接在高壓地和低壓地之間,有時會采用兩個Y電容串聯是為了提高高壓地和低壓地之間的耐壓,有時候會出現耐壓不足的情況,導致安規電容打耐壓過不了,可以選用高壓陶瓷電容作為Y電容,Y電容通常接法有四種情況:
①輸入端,和共模電感形成濾波器,L和N分別對PE加
②儲能大電容正負端對PE加(如圖4所示)
③輸出端對PE加
④變壓器原副邊跨接(如圖5所示)

圖4

圖5
X電容和Y電容同屬于安規電容。當安規電容器失效后,不會產生電擊,不會危及人身安全。安規電容通常用于抗干擾電路中起濾波的作用,安規電容的放電和普通電容不一樣,普通電容在外部電源斷開后電荷會保留很長時間。如果用手觸摸就會被電到,而安規電容則沒這個問題。X電容和Y電容應用在開關電源中各種作用都不同,都是不可以互相替換的。
推薦閱讀:




